Saltar al contenido principal
Texto descriptivo de la imagen

Con una gran concurrencia de vecinos y vecinas, autoridades municipales y departamentales, se llevó a cabo la presentación oficial del nuevo Centro Cultural de Joaquín Suárez, una obra largamente esperada por la comunidad y que ya se encuentra en proceso de construcción.

“Estamos en un proceso de ejecución de una obra super importante”, explicó el director general de Espacios Públicos, Eugenio Castro. “Para Suárez, el Centro Cultural era una obra muy pedida, que viene de un proceso bastante largo, desde 2017. En el 2022 se generó el financiamiento a través del fideicomiso y en este período nos toca la ejecución”, detalló. 

Desde la Dirección General de Cultura, el enfoque está puesto no solo en la infraestructura, sino también en la participación comunitaria para definir el futuro del espacio. “Hoy tenemos este hito, que es empezar a conversar con los vecinos para construir un plan de gestión participativo. El municipio y la comunidad van a tener un rol muy importante”, expresó Sergio Machín.

Machín adelantó que el centro será un espacio de referencia para la formación cultural, la memoria patrimonial, especialmente la ferroviaria y la recepción de propuestas comunitarias, en el marco del programa Cultura Viva. “Este lugar va a tener la posibilidad de recibir cine, un espacio infantil, promoción a la lectura y muchas más ideas que se irán concretando en el tiempo”, concluyó.

Por su parte, el alcalde de Joaquín Suárez, Juan Arellano, destacó la importancia de contar con un espacio propio para las actividades culturales del municipio: “lo que vamos a presenciar hoy es el futuro del centro cultural. En pocos días vamos a tener un lugar que importa para nuestra ciudad, con diversas actividades y un futuro muy bonito para nuestra población", aseguró. “La importancia es tener algo propio, donde podamos realizar actividades que hoy no tienen lugar en otros espacios. Ahora vamos a contar con una sala disponible para el pueblo”, concluyó.

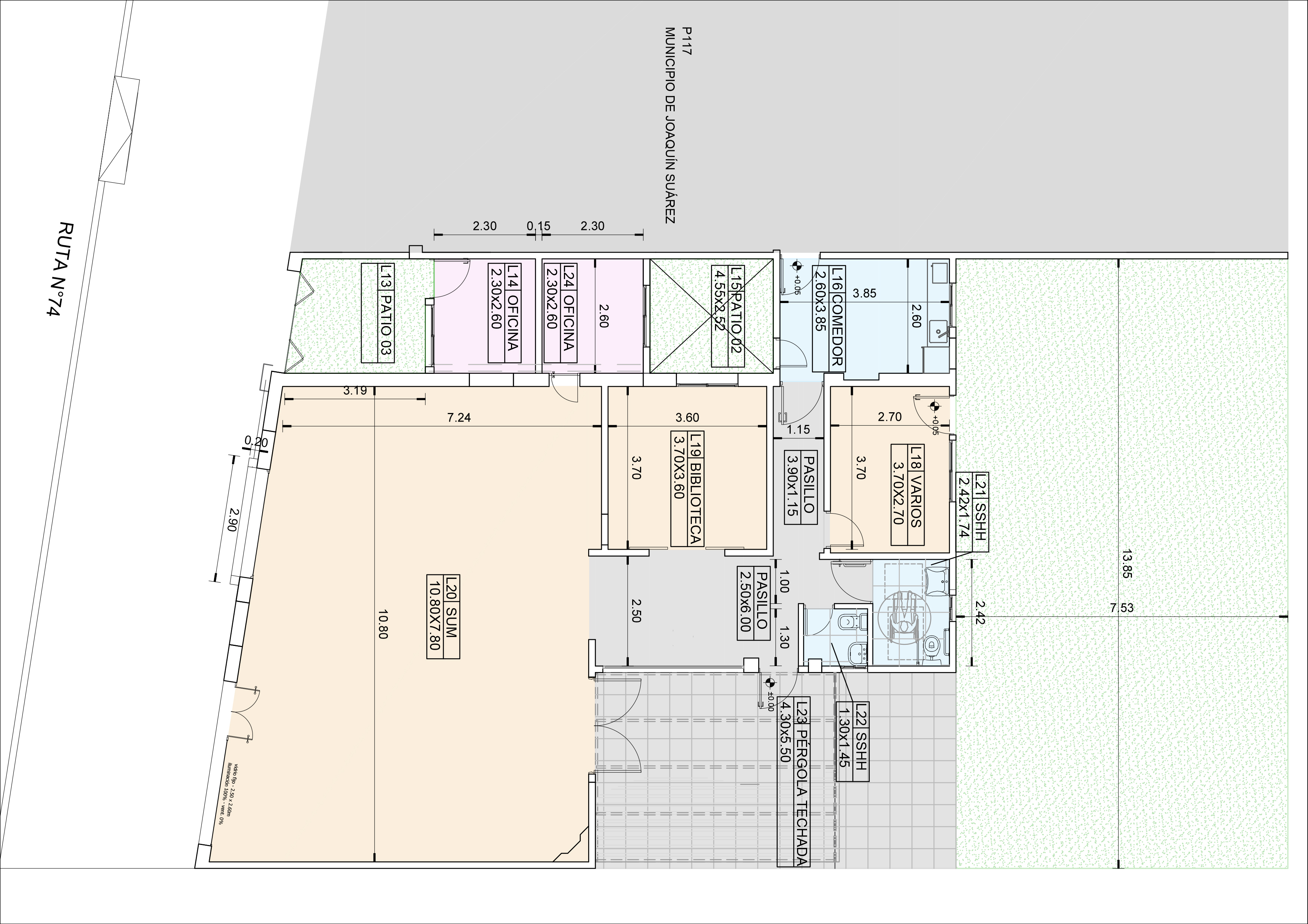
También estuvo presente la arquitecta Virginia Olivera, directora de Acondicionamiento Urbano, donde explicó detalles del proyecto. 

La obra implica la intervención de 332 m2 y comprende el reacondicionamiento integral de la edificación con el objetivo de conformar una sala de usos múltiples, una biblioteca, una oficina, comedor para funcionarios y dos baños (uno de ellos accesible). Además, contará con un espacio interior con cubierta traslúcida y patio al aire libre. Financiada mediante fideicomiso departamental, tiene una inversión estimada de $ 9.784.000 y se prevé su finalización para mediados de diciembre de 2025.

El Centro Cultural de Joaquín Suárez no solo representa una mejora en la infraestructura local, sino también un paso adelante en el fortalecimiento del tejido social y cultural de la ciudad. La obra refleja el compromiso del Gobierno de Canelones con el desarrollo territorial y la participación activa de la ciudadanía.

VIDEO

Avanza la obra del Centro Cultural de Joaquín Suárez
Avanza la obra del Centro Cultural de Joaquín Suárez